Table des matières
Présentation de Freecad
Pourquoi un logiciel de modelisation 3D
Un logiciel de modélisation 3D peut servir à concevoir un modèle, générer des fichiers STL pour l’impression 3D et entreprendre un processus créatif unique. Ce type de logiciel est accessible à tous, notamment à ceux qui n’ont pas de connaissance en programmation.
Applications de la modélisation 3D
La modélisation 3D trouve des débouchés variés dans de nombreux secteurs. Voici quelques exemples :
- Industrie du cinéma et de l’animation : Création d’effets spéciaux, personnages et environnements.
- Architecture : Permet de visualiser et d’estimer les concepts avant la construction.
- Jeux vidéo : Utilisation de modèles 3D pour concevoir des personnages et des étendues interactives.
- Médecine : Impression de modèles anatomiques pour la planification chirurgicale.
- Design de produit : Aide au prototypage et à l’optimisation des designs avant fabrication.
Les diffrents logiciels de modelisation 3D
Pourquoi utliser Freecad
Prendre en compte plusieurs critères, tels que :
- La facilité d’utilisation pour les débutants.
- Les fonctionnalités disponibles adaptées aux besoins spécifiques.
- L’intégration avec d’autres outils, par exemple pour l’impression 3D.
- Le coût, car certains logiciels proposent des versions gratuites et d’autres payantes. (solidwoks = 2400€/an)(fusion360= 840€/an)(Autodesk Inventor=2748€/an)(Catia_V5_3D=3480 €/an)(Rhinoceros3D=995€/unefois)(SketchUp3D=123€/an)
FreeCAD est un logiciel de CAO polyvalent et complet qui couvre tous les aspects essentiels de la conception assistée par ordinateur, ce qui en fait un outil idéal pour les enseignants et les étudiants. Voici pourquoi :
- Fonctionnalités Complètes : FreeCAD offre une large gamme de fonctionnalités, incluant le dessin 2D, la modélisation 3D, la conception paramétrique et la simulation. Ces caractéristiques permettent aux étudiants d'explorer l'ensemble du spectre de la conception CAO, des concepts de base aux techniques avancées.
- Avantage de l'Open-Source : Étant open-source, FreeCAD offre une opportunité unique aux étudiants de plonger dans les rouages internes d'un logiciel de CAO. Cette transparence favorise une compréhension approfondie des principes de la CAO et encourage l'expérimentation et la personnalisation.
- Économique : FreeCAD est entièrement gratuit, le rendant accessible aux institutions éducatives et aux étudiants qui n'ont pas le budget pour des logiciels commerciaux coûteux. Cela démocratise l'accès à l'enseignement de la CAO, nivelant le terrain de jeu pour les apprenants du monde entier
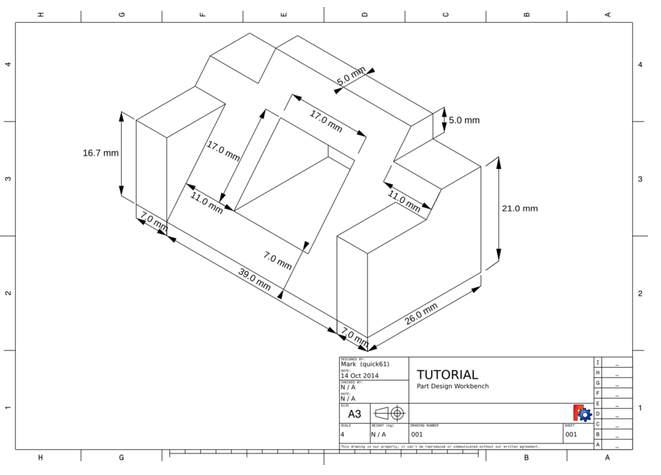
Les exemples de réalisations avec Freecad
Le site de Freeacd
Telecharger Freecad
Interface de Freecad 1.0.2
La fenêtre principale de l'application peut être grossièrement divisée en 11 sections :
- La zone de vue principale qui peut contenir différentes fenêtres à onglets
- La vue 3D normalement intégrée dans la zone de vue principale
- La partie supérieure de la vue combinée qui comprend la vue en arborescence et le panneau des tâches
- La partie inférieure de la vue combinée qui comprend l'éditeur de propriétés
- La fenêtre de sélection
- La vue rapport
- La console Python
- La barre d'état
- La zone de la barre d'outils
- Le sélecteur d'atelier qui est lui-même une barre d'outils
- Le menu standard
Le cube de navigation
En haut à gauche de la zone graphique,se trouve le cube de navigation. Il permet de pivoter les objets selon
différentes directions, ou encore d’afficher les objets selon un plan de projection particulier (Vue de face, de droite, de
dessus…)
- Un clic sur la zone au centre du cube, permet de déplacer le cube lui même, pour le placer où bon vous semble.
- Un clic sur l’une des faces, rendra automatiquement cette face parallèle à l’écran. Pour sélectionner une face cachée, il suffit de positionner le curseur sur la zone grisée entre les faces, la vue cachée apparaitra en transparence et pourra être saisie.
- Un clic sur les flèches courbes du dessus pivote les objets d’un angle de 45° autour d’un axe perpendiculaire à l’écran
- Un clic sur le triangle droit ou gauche pivote les objets de 45° autour d’un axe vertical dans le plan de l’écran.
- Un clic sur le triangle haut ou bas pivote les objets de 45° autour d’un axe horizontal dans le plan de l’écran.
- Le sélecteur en bas à droite permet de choisir le type de perspective de représentation des objets (Avec ou sans fuyantes), et ’ajuster le zoom au mieux. (Utile lorsque l’on a perdu ses objets).










